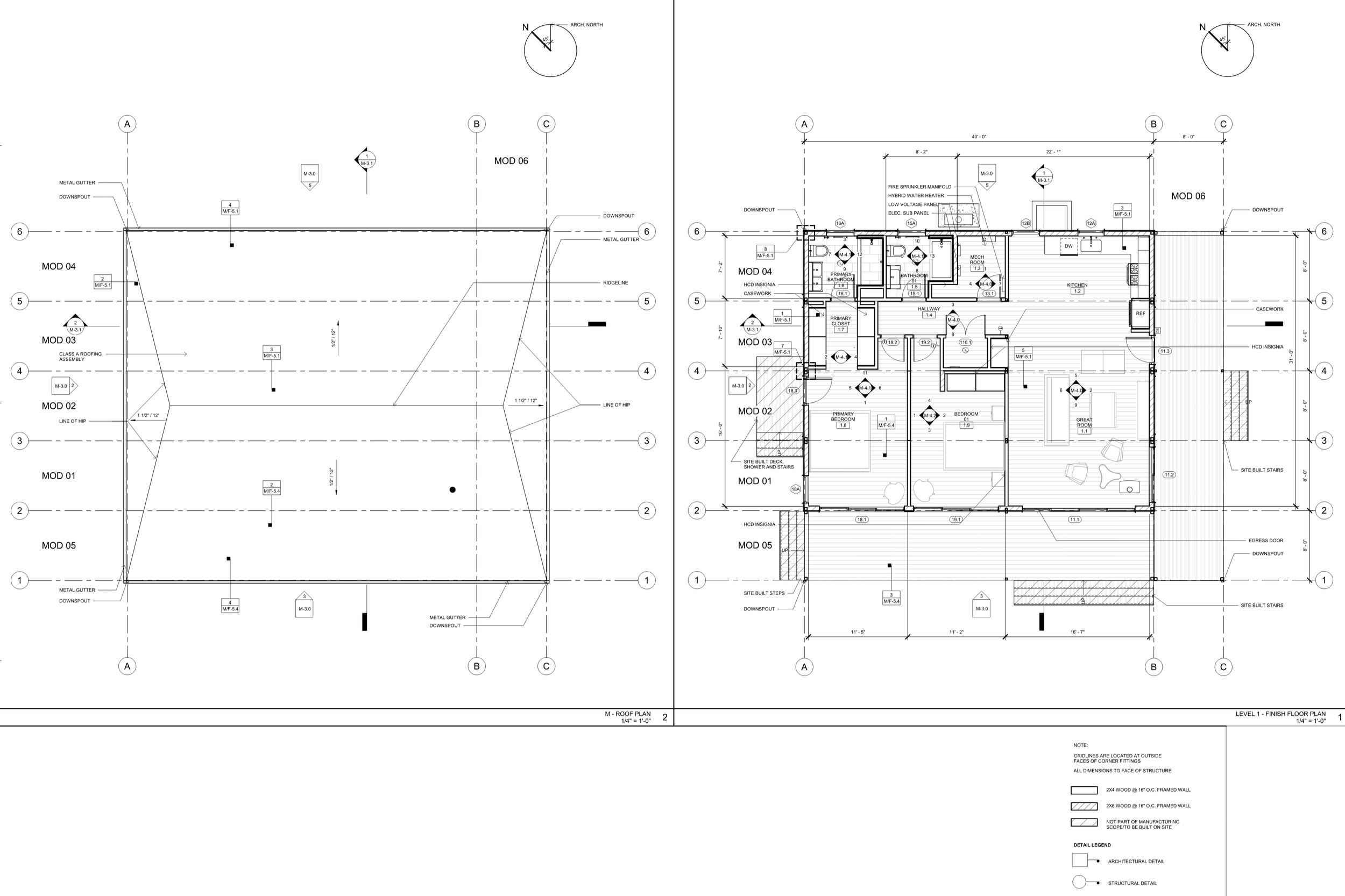
Project Completed While Employed by CONNECT HOMES
Project Type
Single Family Residential
Factory Built Modular Home - Joshua Tree
Year: 2024
Joshua Tree, CA
/* fwd animation */
Project Completed While Employed by CONNECT HOMES
Project Type
Single Family Residential
Factory Built Modular Home - Joshua Tree
Year: 2024
Joshua Tree, CA